Rif: 35/25
LISSONE
MONZA BRIANZA
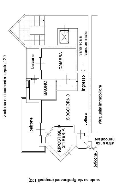
Lissone, nel cuore della zona Pacinotti, a pochi passi da tutti i servizi di prima necessità e con le scuole raggiungibili a piedi, proponiamo appartamento di 3 locali al Piano Terzo di una palazzina di metà anni '90, con Ascensore e così composto: Ingresso, Soggiorno con angolo cottura, Locale Ripostiglio/Stireria finestrato (attualmente adibito a Cameretta), Balcone principale di generose dimensioni e secondo Balconcino di servizio nella zona cottura, completano la Zona Giorno. Zona notte composta da Disimpegno, Camera Matrimoniale con terzo Balcone e Bagno.
L'appartamento dispone di infissi in alluminio doppio vetro con tapparelle elettriche, impianto di condizionamento in zona giorno e camera matrimoniale ) ed impianto d'allarme.
Riscaldamento Autonomo.
Negli ultimi anni sono state apportate migliorie all'appartamento, tra le quali:
- Videocitofoni recentemente installati
- Zona notte totalmente ristrutturata 2 anni fa
- Bagno completamente ristrutturato, impiantistica compresa
- Elettrificazione di tutte le tapparelle
- Installazione impianto domotica
NO Cantina e Box di pertinenza.
Possibilità di Box in affitto all'interno del Condominio.
Possibilità parte del mobilio e aria condizionata con prezzo da quantificare a parte.
Libero a 6 mesi dal Preliminare.
Nonostante il nostro impegno nel fornire tutte le informazioni relative all'immobile in modo dettagliato e preciso, potrebbe capitare qualche piccola imprecisione. Per questo motivo, questa pubblicità ha carattere puramente indicativo e non costituisce in nessun caso un vincolo contrattuale.
L'appartamento dispone di infissi in alluminio doppio vetro con tapparelle elettriche, impianto di condizionamento in zona giorno e camera matrimoniale ) ed impianto d'allarme.
Riscaldamento Autonomo.
Negli ultimi anni sono state apportate migliorie all'appartamento, tra le quali:
- Videocitofoni recentemente installati
- Zona notte totalmente ristrutturata 2 anni fa
- Bagno completamente ristrutturato, impiantistica compresa
- Elettrificazione di tutte le tapparelle
- Installazione impianto domotica
NO Cantina e Box di pertinenza.
Possibilità di Box in affitto all'interno del Condominio.
Possibilità parte del mobilio e aria condizionata con prezzo da quantificare a parte.
Libero a 6 mesi dal Preliminare.
Nonostante il nostro impegno nel fornire tutte le informazioni relative all'immobile in modo dettagliato e preciso, potrebbe capitare qualche piccola imprecisione. Per questo motivo, questa pubblicità ha carattere puramente indicativo e non costituisce in nessun caso un vincolo contrattuale.
Consistenze
| Descrizione | Superficie | Sup. comm. |
|---|---|---|
| Principali | ||
| Immobile - 3° piano | 72 Mq | 72 Mqc |
| Balcone - 3° piano | 3 Mq | 1 Mqc |
| Balcone - 3° piano | 5 Mq | 2 Mqc |
| Terrazza - 3° piano | 12 Mq | 4 Mqc |
| Totale | 79 Mqc | |
